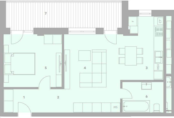
Locuinta este alcatuita dintr-un hol de acces, 2 camere, o bucatarie deschisa, un grup sanitar si o terasa de 16 mp.
Moduri de plata: Plata se poate face atat din surse proprii, cat si cu ajutorul unui credit. Cu mai multe informatii, va va ajuta dezvoltatorul imobiliar.
Apartamentele din Neppendorf Residence au clasa energetica A si pot fi achizitionate prin intermediul programului bancar Casa Verde.
Clasa energetica A reprezinta eficienta maxima a unei locuinte, avand ca avantaje atat dobanzi bancare mai mici, cat si costuri reduse la utilitati.
| Pret vanzare: | € 125,000 |
|---|---|
| Data predarii: | Decembrie 2026 |
| Zona: | Turnisor |
| Suprafata utila: | 54 mp |
| Confort: | 1 |
| Compartimentare: | Open space |
| Etaj: | Etaj 2/4 |
| Nr. etaje imobil: | 4 |
| Numar balcoane: | 1 |
| Incalzire: | Centrala proprie |
| Ferestre: | Termopan |
| Numar camere: | 2 |
| An constructie: | 2024 |
| Structura: | Caramida |
- ansamblu rezidential nou, blocuri cu lift, boxe si garaj
- boxa la subsol inclusa in pret
- numeroase spatii verzi in zona
- locuri de joaca pentru copii
- clasa energetica A
- apartamente izolate termic si fonic cu materiale specifice – caramida Cemacon (confort termic si acustic ridicat, protectie ridicata la incendii, reduce riscul aparitiei igrasiei si mucegaiului) – vezi AICI detalii
- grupuri sanitare cu geam de aerisire
- incalzire in pardoseala
- locatie buna, aproape de zona de Vest a orasului si de Aeroportul Sibiu
- priveliste panoramica asupra orasului
- adapost A.L.A.
- cai de acces asfaltate si iluminate
Stadiul si data de predare: Imobilul este in intabulat și este disponibil oricand, cu predare la alb.
Vezi oferte similare

Agenția Imobiliară New Concept Living
004 (770) 572 116
Neppendorf Residence – Cartierul Turnișor




